COMPANY
注意発行当時の記述について
本記事は、金剛株式会社が1987年11月25日に発行した機関誌「PASSION Vol.3」の内容を、当時の記録として公開するものです。
記事内の情報は発行当時のものであり、現在の状況とは異なる場合があります。また、当時の社会情勢や倫理観を反映した表現が含まれている可能性があり、現代の基準に照らし合わせると一部不適切と感じられる箇所もあるかもしれませんが、資料的価値を考慮し、原文のまま掲載しています。また、掲載されている商品やサービスは、既に販売・提供を終了している場合があります。
※ 本記事は、著作権法上の引用の範囲内で掲載しています。当時の記録として、皆様に楽しんでいただけましたら幸いです。
※logistics:後方業務、兵たん業(調達・貯蔵・輸送・宿営・糧食・交付・整備及び人員・器材・補給品の護送などの業務)
(株)セレモニー通商で活躍するコンゴー移動棚 冷凍庫EH

三重県尾鷲市にある県漁連尾鷲製氷冷凍工場では、昭和60年水産施設整備事業(事業費9,500万円うち県1,100万円補助)により熊本県に次ぐ全国で2番目の超急速冷凍施設が完成しました。
これまで養殖魚を冷凍するには、船に氷を積んでいけすまで行き、魚を氷漬けにして魚肉をひきしめた後、冷凍施設で冷凍していましたが、冷凍装置が空冷式であったことからハマチ一匹(5~6kg)を中まで凍らせるのに10時間もかかっていました。
新しい施設は、塩化ナトリウムとエチルアルコールを混合した液体を使い、-35℃で魚を生きたまま3時間で冷凍することができるようになりました。そのため解凍時の鮮度が格段に向上した訳で、こうした動きはユーザーの高品質指向に歩調を合わせ、ますます加速化されている傾向を強めています。
焼津港周辺の冷凍冷蔵庫業界では、巨大な魚体をもつマグロの一層の鮮度保持を求めて、-70℃という冷凍冷蔵庫内における各種の荷役機器や保管機器にとって限度を超える苛酷なレベルを要求するようになっています。
こうした動きの中にあって当社は物流システムメーカーとしてユーザー様と共に研究し、より良い物流機器を開発していかなければなりません。
今回は(株)セレモニー通商様で活躍しているコンゴー移動棚冷凍庫EHをご紹介し、その導入の狙いや導入後の効能について、同社業務部国重主任へのインタビューを通してまとめてみたいと思います。またこの業界の動きも併せてヒアリングしました。

代表取締役 神田 忠 様

業務部主任 国重 政治 様
●お客様 株式会社セレモニ一通商
●所在地 山口県下関市宇津井1265
●電 話 (0832)82-8803
●代表者 神田 忠 様
●業 務 (株)日本セレモニーを中心に結成される日本セレモニーグループ8社の中で製造流通機能を担う。日本セレモニーグループは会員制による冠婚葬祭全ての業務を行なうもので、グループ独自のシステムにより会員募集から結婚相談、 セレモニー施行、食品の製造加工と幅広い総合セレモニー産業を形づくっている。現在会員数全国40万人を超え日本のトップクラスである。
究極の満足を追求する日本セレモニーグループ
山口県下関市みもすそ川町にある火の山は瀬戸内海国立公園の一角にある。関門海峡が一望のもとに広がり、本州最西端の地として九州を間近に眺めることができる。
火の山は幕末に、この海峡に外国船が現われた時、砲台を置いた馬関戦争の舞台である。
この火の山の向かい側に西日本一の総合結婚式場平安閣がそびえ立っている。
これこそ山口県選出の次代のニューリーダー安倍晋太郎代議士も支援する(株)日本セレモニーの驚威的発展の基礎となった金字塔である。
昭和47年にスタートした同社は冠婚葬祭事業の互助会として基礎を強固のものとし、通産省の後循もあり、今や全国に約40万人の会員を有し、業界トップとして、ますますの発展を期している。
これはグループ総帥として神田忠代表取締役のあくなきチャレンジ精神の発露としての結果であ り、今や傘下企業も10数社を数え、その本来の企業在立の最大要素である会員各位の究極の満足の追求に向けて日夜全社員が恐るべき努力を傾注している、いわば企業軍団といえる。
神田代表の信念は数字に強い経営の達成を目指し、会員組織を最大に活かし、これからの情報化社会の先取りにあるといえる。
特にその経営にふり向ける〝情熱〟は本紙の表題であるパッション=情熱とダブリ、まさに本紙取材にふさわしい人であり、企業であります。
日本セレモニーグループは次第にその業容を拡大強化しているが、今回当社のシステム製品が納入されたのはその中の(株)セレモニー通商である。

グループ流通部門を一手に担うセレモニー通商
全員互助組織の(株)日本セレモニーを主心にスタートした後、グループ業態は発展し、セレモニーの施行業務、冠婚葬祭に伴なう備品や用品の販売に関する業務、各種式場経営、観光業、飲食業、不動産業、運送業、保険業などを行なうグループ企業が誕生し、そして昭和59年には、山口県と大阪府に流通業務を主とする(株)セレモニー通商の、山口、大阪の2社が誕生した。これは当初総合パ ーティ企画として設立された〝まる忠〟の発展であり、まる忠の持っていた仕出し料理や引出物等の物品販売業務をそっくり引き継ぎ、同時にトータルコストダウンを狙って自社製造、自社コントロ ールを開始した。
(株)セレモニー通商の主な機能をまとめると
- 製造加工機能
調理、菓子製造、砂糖・コーヒーのパック、招待状や礼状などの印刷、写真現像、衣裳クリーニングなどの機能を持ち、グループ内での相乗効果の実があがる仕組となっている。 - 物流・流通管理機能
家具、仏壇、葬儀の花輪や結婚式のテーブルフラワーなど適宜適確に配送管理される。新鮮さを要求される生花・くだもの・鮮魚などは保存用ストッカーで待機させるなど気配りにも注意されている。 - 倉庫管理機能
セレモニー用品を始め、販売用在庫品などが保管されねばならず、そのアイテム数は多岐にわたっており、管理機能の強化の為昭和59年1月に約3000坪強の流通センターの完成をみた。特に製造加工される大量の食品はチルド品であったり、保存の為に冷凍冷蔵庫を要したりで、それらへの対応は完璧さを求められ、倉庫管理機能の強化、冷凍冷蔵庫管理機能の強化に腐心の歴史が始まった訳である。
ここにグループ発展の為の物流への取り組みも本格化していったといえる。
知識と経験と経営センスを 要求される冷凍冷蔵庫の管理運営
通常の倉庫管理と異なり、冷凍冷蔵庫の設置や管理運営にはその保存保管品の性格上極めて専門的な知識と経験が求められる。
併せてコストも通常倉庫と比較にならない程高くつくので、当然のことながらコストパフォーマンス、言いかえれば経営感覚が強く要求される。
例えば冷凍冷蔵庫の関わる法律名を列挙すると、
- 建築基準法
- 倉庫業法
- 消防法
- 食品衛生法
- 労働安全衛生法
など枚挙にいとまがない。
設備面からどの程度の低温、湿機能を狙うか?
また別の観点でみれば、まず設置時において保存保管品から求められる設備機能を通常保存設置観点に加えて明確にしておかねばならない。これは当然にその設備コストが低温になればなる程、格段に違ってくるからであり、更に荷役機械の選択、運営基準規則にも関わるからである。
- 営業冷蔵倉庫か自家用冷蔵庫か?
● 営業倉庫
倉庫業法による営業許可を受けた冷蔵倉庫をいう。
● 自家用冷蔵倉庫
系統団体冷蔵倉庫、公営冷蔵倉庫及び自家用貨物保存冷蔵倉庫。 - どの等級を狙うか?
倉庫業法では常時摂氏10度以下に保たれるものを冷蔵倉庫と規定しているが、同法施行規則運用法方針に基づく級別として
● F 級 ⋯ -20℃以下
● C1級 ⋯ -20℃未満 ~ -10℃以下
● C2級 ⋯ -10℃未満~ -2℃以下
● C3級 ⋯ -2℃未満 ~ +10℃以下
など予め確認しておかないと後刻やり替えは莫大なコスト増を招くことになる。


運営面から省スペース機能は重大観点
次にランニング、運営面から起こる諸観点である。通常倉庫と違い冷却機能が要求される訳であり、これは通常殆んど電力で保持される。
例えば運輸省経営指票からデータをみると昨今の円高で多少は電力費も緩和されるとは言え、昭和48年の総原価に占める動力比(電力比)の割合は5.8%であったものが昭和60年には13.3%まで上昇しており、その比は、年々上昇してきている。
その他に上昇している費目は、人件費であり(29.7% → 31.4%)一方、下降しているのは減価償却費(16.1% → 8.3%)や営業外費用(16.0% → 11.0%)などである。この面からも省人設備、省エネ設備、そして省スペース設備は大いに研究されねばならない処である。

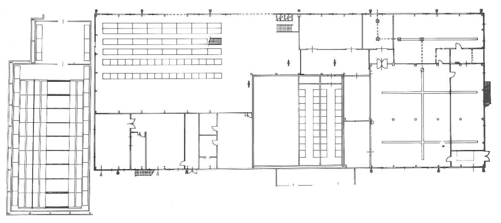
● 自動倉庫システム ⋯ 3基
● 積層式物品棚
● 冷凍冷蔵倉庫 ⋯⋯⋯ 4基
● 食品製造室 ⋯⋯⋯⋯ 2室
保管品ごとに4つの冷凍冷蔵庫を備えトータルコスト削減に苦心のセレモニー通商
同社ではランニングコストのウエイトを当初のイニシャル設備コストと対比して充分に検討した結果、数多くの種類が要冷凍冷蔵であるが、つぶさに検討すると品目毎に大きな要求環境に差があることが判明した。そこでともすれば大型化、共通化を狙い初期設備費用の削減を考えがちであるが次の観点から小分け方式をとった。
- 品目によって要求温度が違う。
共通大型の場合、最大冷凍値まで温度を下げることの不要な品目は余計な解凍の為の工数が増える。 - セレモニーが主体の為季節変動が多く、在庫に大きな変動がある。
結婚式などは季節によって大きく変動するので在庫調整した方がトータルで得策と判断される。 - 品目によって荷姿(保管形態)が違うし、またアウトプット形態も差がある。
大量生産小量取出し、小量生産一括取出しなど作業性にも差があるのでその点を考慮した。通常はインプット単位はパレット単位で、アウトプットはパレット単位または小量取出しを考えた。

小分け方式は勿論最初の投資額は増えたが、トータルのコストつまり経費の増を抑えることができた。
そしてそのコスト削減の為の運営方法にも知恵を出し4基の冷凍庫の中で一部の冷凍庫はある期間は運転を停止するなどの処置で対応している。
但し、この点も運転停止時にはバクテリアやカビの培養を防ぐために消毒が必要であり、コストもかかるのでこの点の費用削減と折角の設備の多用途化、フル活用を図る為次は営業倉庫としての展開も計画されている。

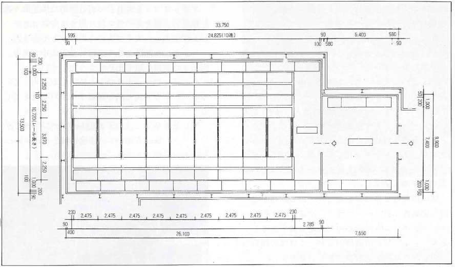
| ラック型式 | 電動式パレットラック(冷凍庫仕様) |
| 荷姿寸法 | W1,050×D1,050×H1,300 700kg/パレット |
| 収容数 | 冷凍庫 592パレット 保冷庫 40パレット 計632パレット |
| ラック寸法 | W2,475×D1,000×H5,000 ビーム3段 |

冷凍庫内の移動棚機能の最大発揮を求めて 自動倉庫から移動棚へ転換も
すべてに効率を追求する姿勢の強いセレモニー通商では各種の物流機器もその持つ様々な機能の最大発揮を狙っている。
例えば現有する4基の冷凍室の中で2基は簡易式自動倉庫方式である。パンチカード方式であり、 これはパレット単位での管理(搬出入・保管)である。メリットとして作業者が中に入ることがないので作業安全性は良いが、一方で、数個ピッキングの場合もパレット単位で引き出さねばならず、サイクルタイム(平均1.5分)の待ち時間に多少作業者の不満もある。
他の最新の2基は移動棚方式である。移動棚の持つ密集性、省スペース性は、冷凍庫の大部分のランニングコストが冷却の為の電力費であることを考えると、特に冷凍庫内においては他の機器の追随を許さぬ特筆大書すべきものである。
セレモニー通商ではこの点を最大に追求し、さらに同社では独特の使用方法を考えだした。
すなわち2~3個のごく小量の取り出しのケー スも多くその場合次のような知恵をあみ出した。
アウトプットをABC分析し、特に少量取り出し頻度のA級を棚の低い段に置くようにロケーションで工夫し、人手で素早く取り出している。
つまり、-30℃という非常に低温の中であり、出来るだけ早く取り出せるようにしている。
高い段はフォークリフトを使って取り出しているので、割合多量に出し入れする品目に適している。
特に第4基室にはわずか400㎡の中に冷凍室592パレット、保冷室40パレット合計632パレットと、格段の収容能力を誇っている。


食べ頃温度に気配り ―心が商品―
冷凍冷蔵食品は最大-30℃以上に凍っているので即ぐ食べるという訳にはいかない。丁度食べ頃の温度になるよう解凍管理が必要である。
例えばセレモニー通商で作っておられるバウムクーヘンで言えば
● 生産保管 → -30°C
● 出 荷 → -15℃
● 式場保管 → -10°C
● 家 庭 → -3℃ ~ +2℃
つまり、出荷24時間前に保冷室に移して解凍工程に入り、各家庭に着く頃は食べ頃になっているという仕組みになっている。もちろん食品衛生第一ではあるがお客様の身になっての気配りが感じられ、日本セレモニーグループの発展の秘密はこの心にあると言える。
更に細かい事では、冷凍庫内にカビやバクテリアの増殖を防ぐ為に水気や水滴に格段の配慮を尽しているが、扉の開閉、外部からの品物入庫を急に行なわないなど気をつけておられる。
こうした心こそ創業の心意気であり、発展の礎となったものと思われる。
そして神田代表の言葉に「堀り下げていけば、 私たちの関与しうる事業は限りなく存在する」というチャレンジ精神あふれる思想があるが、社員 1人ひとりに心配りと挑戦魂がある限り日本セレモニーグループはどこまでも発展していくのではないかと思われる。
創立15周年記念誌の最後のしめくくりにその辺を予期してか、『かって、燃える志を持った人々が創業期の集合体を作りあげてきたように、今、次代の若い人々が、再び大きな集合体を創りあげてゆく時がきている⋯⋯』とある。



【参考資料】
●月刊食品定温流通VOL15 No.9
●日本セレモニーグループ創立15周年記念グラフィー
●(社)日本冷蔵庫車協会 冷蔵倉庫業界レポート
●倉庫業法施行規則
(1987年11月25日刊行(季刊))
