COMPANY
注意発行当時の記述について
本記事は、金剛株式会社が1989年5月31日に発行した機関誌「PASSION Vol.5」の内容を、当時の記録として公開するものです。
記事内の情報は発行当時のものであり、現在の状況とは異なる場合があります。また、当時の社会情勢や倫理観を反映した表現が含まれている可能性があり、現代の基準に照らし合わせると一部不適切と感じられる箇所もあるかもしれませんが、資料的価値を考慮し、原文のまま掲載しています。また、掲載されている商品やサービスは、既に販売・提供を終了している場合があります。
※ 本記事は、著作権法上の引用の範囲内で掲載しています。当時の記録として、皆様に楽しんでいただけましたら幸いです。
※logistics:後方業務、兵たん業(調達・貯蔵・輸送・宿営・糧食・交付・整備及び人員・器材・補給品の護送などの業務)
日本特殊塗料株式会社 九州工場に納入されたコンゴー自動倉庫システム



nittoku の名称で知られ建築関係、航空機、その他塗料メーカーである、日本特殊塗料株式会社の新九州工場が、このほど、三大清流の一つ、筑後川の下流沿いに完成しました。それまで42年間操業されていた福岡県久留米市から、ひとつ川を越した佐賀県三養基郡北茂安町への移転です。
移転の理由は主に旧工場が市内一等地になったため周辺への配慮が必要となり、また将来への発展性拡張性を考慮しての時代の流れに沿った自然なものであるといえます。現在、この工場敷地約2万7千㎡に、事務所棟も含め、合計3棟の工場棟に集約されており月産2,000tonもの塗料類が生産されています。
その第一工場棟の中に、今回当社の自動倉庫システムを導入決定いただき、工場各階のステーションから生産現場へ自動供給の役目を果たしフル稼働する姿を見ると改めて、万感胸にこもります。
今回のシステムで特筆すべき点は、塗料製造所に設置されている自動倉庫システムであるため、防爆仕様となっている点です。信頼と貢献を標榜して躍進されるニットクの新九州工場と物流システムの顧客ニーズにフレキシブルに対応するコンゴー自動倉庫システムの概要を紹介し、読者の参考に供しうれば幸いと存じます。
沿革
日本特殊塗料(株)九州工場は、昭和21年1月、軍需省航空兵器総務局長の命により、久留米市野中町にあった赤松社という有馬藩の旧職業指導所を譲受、航空機用塗料製造工場として発足、その後42年間建築建材向塗料を主として製造してきましたが昭和61年度に北茂安町の誘致により工場団地を入手し昭和62年12月、久留米市より移転、操業開始した塗料製造工場です。
● 名 称 日本特殊塗料株式会社 九州工場
● 所在地 佐賀県三養基郡北茂安町大字江口4726番地
● 電 話 (0942)89-5661 ㈹
● 創 業 昭和20年1月
福岡県久留米市野中町
● 新工場へ移転 昭和62年12月
佐賀県三養基郡北茂安町
● 生産高 35億円(昭和63年)
会社概要
経営の基本理念
優秀な製品と卓越した技術により社会に貢献する。
社員の福祉を増進し、株主の利益を尊重する。
信頼される会社として、永遠の発展を目指す。
概要
商号 日本特殊塗料株式会社
NIHON TOKUSHU TORYO CO.,LTD.
本社 東京都北区王子5丁目16番7号
創業 昭和4年6月1日
資本金 836,000,000円(16,720,000株)
(授権資本2,000,000,000円・40,000,000株)
売上高 30,000,000,000円(63年度見込)
従業員数 630人
代表取締役会長 仲西 太郎代表取締役社長 松井 晴朔
組織図

ニットクの企業理念である創造性、先駆性、信頼性を色で表現し、選び抜いたものがニットクターコイズブルー(Turquoise Blue、トルコ石の青)、また文字で表現したものを、コーポレイト・シンボルとして制定しております。


九州工場の概要
特色
日本特殊塗料(株)は、昭和4年に発足、以来防音材料、合成樹脂塗料、防錆塗料、防水材等の生産、販売を行い、国内外を問わず幅広い産業分野で利用され前進を続けている。その製品群は数多く、中でも代表される nittoku 製品を紹介すると。
(1) 輸送機器(自動車・航空機・鉄道車両)
自動車用防音材、防錆塗料及び航空機塗料は国内全てのメーカーに採用されています。さらに新幹線、電車車両、産業用車両、コンテナなどにも活動範囲を広げ、優れた様々な機能を発揮しています。また、騒音対策には積極的に取り組み、外国企業との数次にわたる技術提携を経て、独自の自動車用防音材を開発、全ての自動車メーカーに採用されております。そして、単に塗料、防音材にとどまらず安全対策等、より新しい分野の材料を求め、研究を続けているとのこと。
(2) 建築・構築物
①塗料
住宅から高層ビルまで、ニットクは内外装の総合メーカーとして、あらゆる種類の建造物に快適な居住性の追求に余念がありません。環境に調和する美しい配色と劣化、汚染を防ぐ優れた保護機能。そして個々の製品を有効に生かす新しい工法によって、多くの建造物でこれまでにない成果が実証されているとのこと。また外国企業との提携を進めて多様化する建築業界の幅広い要求に即応できる体制を完備。
②防水材・床材
雨量の多い日本では、より完全な防水機能が必要です。屋上からの雨水、外壁からの漏水をシャットアウトするニットクの防水材は、建物の補物の手間を軽くし、耐用年数の延長に大きく貢献しています。
また、建築・構築物の床材や各種プール、テニスコート向けなどにも数多くの製品を開発しており、学校、病院、体育施設、店舗、工場、倉庫などさまざまな所に採用され美しく堅牢な表面仕上げを実現しております。
③防音・制振材
自動車用防音材で長年の経験と実績を持ち、これらの各種防音製品は、建築・構築物用をはじめ、工業製品、家電・OA機器と、多岐にわたり使用をされており、防音材のノウハウを生かした防音型電話ボックスも開発、製品化しています。騒音のない静かで、快適な環境づくりに努力しているとのこと。


工場建設に関する考え方
工場建設については下記の条件を満足させるための努力がなされている。
● 周囲住民を配慮しての予防保全(これはかつて旧工場が市内の一等地にあった為、格段の社内留意点)
● 将来の拡張・発展性
● 生産性の向上
● 顧客ニーズに対する対応力の増強(多品種傾向・リードタイム短縮)
今回の自動倉庫システム導入に関する考え方
① 天井空間の有効利用。(スペースセービング)
② 定位置作業。(作業者の環境改善及び作業動線の短縮)
③ 安全性が高い。
④ 自動化対応が可能。(オンライン等)
⑤ 荷物を直積みしない。(荷物の保護)
⑥ 保管効率が高い。
⑦ 省力、省人化。(自動倉庫にコンベアシステムを組み合わせて搬送)
⑧ 整理・整頓。
⑨ コンピュータコントロールが簡単。(物と情報の一体化)
⑩ 在庫管理が容易に行なえる。
⑪ 防爆型によって安全性を高める。
⑫ 同時に社内外に対する安全への積極的PRなど。


| 主要設備 | サンドミル装置 チルドロール装置 ニーダー装置 ディスパー装置 充塡装置 パレタイザー 自動原料ラック装置 | 9 1 1 18 15 2 1 | 貯蔵タンク(地上・地下) 受水槽(10 t) 原水槽(30 t) 合流槽(20 t) 排水処理装置 蒸発散処理装置 混合タンク | 9 1 1 1 1 1 22 |
| 生産能力 | 月産総能力 | 2000 ton | ||
| 特 徴 | ● 電算機による全社オンラインシステムの導入 ● 少量多品種生産対応レイアウト ● 自動充塡装置導入 ● 自動原料収納システム装置導入 ● 加圧浮上式排水処理システム導入 | |||
| 工場総敷地面積 Overall Factory Area | 生産能力(月産) Monthly Capacity | ||
| 1.合成樹脂塗料防錆材 | 2.防音・制振剤 | ||
| 平塚工場 Hiratsuka Factory | 31,071 ㎡ | 1,500 t | 400,000 ㎡ |
| 静岡工場 Shizuoka Factory | 22,768 ㎡ | – | 800,000 ㎡ |
| 愛知工場 Aichi Factory | 24,704 ㎡ | 1,200 t | 500,000 ㎡ |
| 広島工場 Hiroshima Factory | 19,561 ㎡ | 1,000 t | – |
| 九州工場 Kyushu Factory | 26,960 ㎡ | 2,000 t | – |
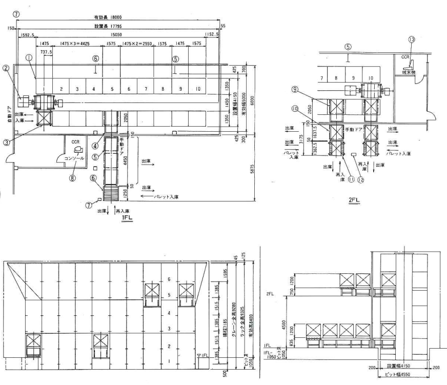
システム概要
今回の自動倉庫システムはその特長を最大に生かし、2種危険場所においての生産ラインに原材料を自動供給するシステムを目標としています。各々の原材料供給ステーションは1Fと2Fにあり、コンピュータからの情報によって必要な原材料及び部品を必要時に自動供給し、生産計画などに必要な情報を速やかに提供する機能を持ち、したがって生産ラインの重要な役目を担っていることになります。また自動倉庫システムの機器は防爆構造となっており、労働安全にも万全の工夫をこらしています。防爆仕様については、別項資料で防爆機器の機能、仕様について紹介いたします。
システム構成・仕様
次に日本特殊塗料(株)九州工場自動倉庫システムの構成・仕様について説明します。
① 保管能力
| 格納数 | 2列×6段×10行(-12) 108棚 |
| 荷 姿 | 1,250 W×1,250 L×1,200 H |
| 荷 重 | 1,000kg/PL |
② 荷役クレーン
| 床上走行型クレーン | |
| 搭載制御盤 | |
| 操作方式 | 自動・・・CPUオンライン自動運転 |
| 手動・・・操作台にてスイッチ操作 | |
③ 周辺機器
| 1F | 入出庫ステーション | 1台 |
| 入出庫コンベアライン | 1式 | |
| 2F | 入出庫コンベア | 2式 |
④ 在庫管理機
| 1F | パーソナルコンピュータ | 1式 |
| 2F | 現場端末機 | 1式 |
⑤ 防爆機器
| 駆動モーター | 耐圧防爆構造 |
| リミットスイッチ | 耐圧防爆構造 |
| 光電スイッチ | 本質安全防爆構造 |
| 端子箱 | 安全増防爆構造 |
| 搭載制御盤 | 封入式内圧防爆構造 |



コンゴー自動倉庫システム(周辺機器)

パレット出荷

パレット出荷

(No.2ステーション)

(No.3・4ステーション)
| 定格荷重 | 1,000 kg |
| 荷 姿 | 1,250w × 1,250L × 1,200H(パレット含む) |
| 格 納 数 | 2列×10行×6段-12棚=108棚 |
| 操作方法 | CPUオンライン自動 |
| 電 源 | 440V(動力用)、100V(制御用)60V |
| 現 | 名 称 | 数 | 備 考 |
|---|---|---|---|
| 1 | ラック | 1式 | |
| 2 | モノレールスタッカ | 1台 | |
| 3 | 1F L固定台 | 1台 | |
| 4 | 1F LチェーンコンベヤⅠ | 1台 | |
| 5 | 1F LチェーンコンベヤⅡ | 1台 | |
| 6 | 1F Lローラコンベヤ | 1台 | |
| 7 | 1F Lコンベヤ操作盤 | 1面 | |
| 8 | 在庫管理機 | 1台 | |
| 9 | 2F LチェーンコンベヤⅠ | 2台 | |
| 10 | 2F LチェーンコンベヤⅡ | 2台 | |
| 11 | 2F Lクラフティコンベヤ | 2台 | |
| 12 | 2F Lコンベヤ操作盤 | 1面 | |
| 13 | 端末機 | 1台 |
1.出庫はパレットおよびピッキング出庫を示す。
2.パレット毎の入庫は必ずパレット入庫から行う。
3.入庫はパレットおよびピッキング入庫を示す。
システム全体図



システム構成図

システムの運用
入出庫ステーションが1F(ステーションNo.1、No.2)、2F(ステーションNo. 3、No.4)に割付けされており、主に新規パレット入出庫とピッキング出庫 – 再入庫として使用されています。

入出庫における設定は1Fのコンピュータ室のCRTキーボードと2Fの端末機によってデータ設定を行います。設定データはステーションNo、モード、品目コード、数量の4項目となります。
入庫は入庫作業リストに基づいて、クレーンに入出庫指令が出力され、固定台上から順にCPUより割付けされた棚に入庫されます。
出庫は出庫作業リストに基づき先入れ先出しに従って出庫棚を決定し、出庫設定数と在庫状況によりパレット出庫またはピッキング出庫 – 再入庫とに分かれます。各ステーションの作業モードを出荷にすると、クレーンは決定された棚から自動的に出庫します。
コンピュータ及び制御機器は非危険場所である内圧室に設置してあります。内圧室は、内部の圧力を常に大気圧より高く保持するように、清浄な空気を送入して外部の爆発性雰囲気が侵入しない構造になっています。
システム開発に際して、日本特殊塗料㈱様には、貴重な資料とデータを提供頂き、当社の物流システムのノウハウを十分に活かしたシステムが完成しましたことは、メーカーとして至上の喜びと自負しております。
物流システムは、御客様と一緒になって考えるもの、誰かが〝物流管理者は鵜匠でなければならない〟と言っておりましたが、まさにその通りだと思います。荷役、保管、輸送、包装という活動を情報で結びつけ、物と情報が一体となったトータル物流システムの創造へ向けて更に前進への歩みを続けて行きたいと考えております。
今回の取材に協力載いた日本特殊塗料㈱様には心から御礼申し上げるとともに、ご発展を祈念致しております。「技術と人材」「創造と開発」「創意工夫」をモットーに更に飛躍され、前進する姿が目に浮ぶようです。
参考資料 『工場電気設備防爆指針』
『電気設備技術基準』
『無人化技術』
『nittoku日本特殊塗料(株)』
『工場見学のしおり 日本特殊塗料株九州工場』
(1989年5月31日刊行(季刊))
