目次
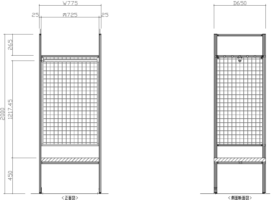
防火衣ロッカー(メッシュタイプ)
軽量で強固でさびにくい特性をもった、アルミタイプの防火衣ロッカーです。
メタリック・ブラックの2色のフレームよりお選び頂けます。



- 寸 法:W775×D650×H2000
- 仕 様:ハンガーパイプ、座面マット、アジャスター付
- 座面色:ブルー/レッド
防火衣ロッカー(2交替用)
ボンデ鋼板仕様とZAM鋼板仕様の2種類を取り扱っています。
2交替パネルの下部に受皿が付いており、個人で使用する手袋や安全帯などの小物も置くことができるタイプです。


- 寸 法:W1200×D600×H2100
- 仕 様:受皿付回転収納部2面(180度ロック)、フック[4]、プラスチック名札差し付き
防火衣ロッカー(3交替用)
ボンデ鋼板仕様とZAM鋼板仕様の2種類を取り扱っています。
パネル一体で回転する上部1段と、下部2段の棚が付いています。


- 寸 法:W900×D800/857×H2100
- 仕 様:回転収納部3面(120度ロック)、棚[3]、フック[6]、プラスチック名札差し付き
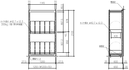
タイヤラック
タイヤを保管することができるラックです。
奥行タイプ別でD850、D650を取り扱っています。





- 寸 法:W1255×D850(650)×H2105
- 仕 様:タイヤ受けΦ42.7×t2.3、200kg/段、樹脂ベース
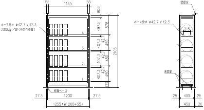
ホースラック
ホースを保管することができるラックです。
奥行タイプ別でD650、D450を取り扱っています。



- 寸 法:W1255×D650(450)×H2105
- 仕 様:ホース受けΦ42.7×t2.3、200kg/段、樹脂ベース
ボンベラック


- 寸 法:W1255×D650×H2105
- 仕 様:固定仕切板H100×t1.6(4枚/段)、t12シナベニヤ張
- オプション:アジャスター
※固定仕切板4枚仕様
補足事項
特注サイズ(別注サイズ)のご相談も可能です。
お気軽にお申し付けください。