目次
アンカーレス施工方式
床へのアンカー工事が不要です(アンカーレス移動棚用)
アンカーボルトによる床固定は必要としません。
床を傷つけることなく設置できます。
FLへの不陸調整はライナーを使用します。

床への過重負担を軽減した設計です
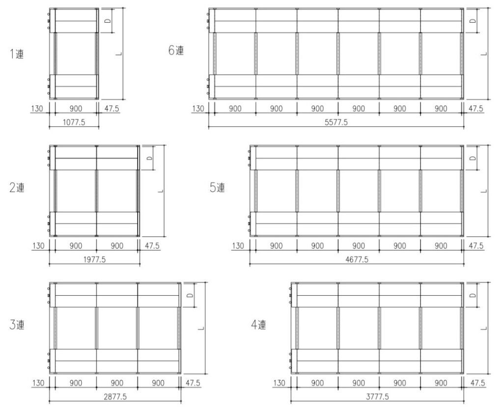
レールは900mmピッチで均等分布です。
レール軌道上に支柱が直立しており、床への荷重負担がレール設置1800mmピッチに比べて小さくなります。
※両端部のレールから+500mmも荷重負担の領域とします

レール設置に基づく寸法及び外形寸法

レール施工方式
耐震型レールをアンカーで強固に固定し、移動棚の長期運用が可能です
レールは、後施工アンカーで確実に床固定します。
FLの不陸調整はライナーを使用します。

床への固定を軽減した仕様です
レールは1800mmまたは900mm、1400mm間隔です。
支柱からの棚荷重に耐えるため、台枠が強固な構造となります。
レール本数が少ない分、レールへの荷重負担も大きくなります。(集中的な荷重)

| 棚連数 | 1 | 2 | 3 | 4 | 5 | 6 | 7 | 8 | 9 | 10 |
| レール数 | 2 | 2 | 2 | 3 | 3 | 4 | 4 | 5 | 5 | 6 |
| AKZ | SMZ | HPZS | AEX | KS | TKZ・KZ | |
| 1~2連 | 325.5 | 390.5 | 262.5 | 297.5 | 295.5 | 367.5 |
| 3~10連 | 575.5 | 640.5 | 512.5 | 547.5 | – | 617.5 |
レール設置に基づく寸法および外形寸法

レール・スロープのバリエーション
使用場所や用途に応じて、レール及びスロープ材を選ぶことができます。
レールのバリエーション
レールプレート構造を採用し、強固な溶接構造で、そり・ねじれをなくしました。

| 区分 | フラットバー材質 | レールプレート材質 |
| 標準 | スチール | スチール |
| オプション① | ステンレス | スチール |
| オプション② | ステンレス | ステンレス |
※オプション①の場合、 フラットバーの上面のみ塗装がありません。
※後施工アンカー (M6×50mm)が標準です。



スロープ材のバリエーション
スロープ幅は台車やカート等の使用を考慮して、150mm、200mm、300mmのバリエーションからお選びいただけます。
スロープを選定した場合、普通鋼板の幅:150mm、板厚:2.3mmが標準です。
- 幅:150mm 板厚:2.3mm
- 幅:200mm 板厚:3.2mm
- 幅:300mm 板厚:3.2mm
- 材質:普通鋼板/縞鋼板/ステンレス
※スロープの端部は塞ぎ板が付きます。



移動棚のレール施工方法
A:据置タイプ
既存の床の上にレールをレベル調整し、 アンカーにて固定して設置します。


B:据置タイプ(スロープ付)
据置タイプのレールに、 スロープを取り付けます。
つまずき防止や台車等の利用に採用されます。
▲注意:電動棚HPZSは採用不可です。
-edited.png)
.png)
C:床上げタイプ
前面のみスロープとし、レール間は合板で敷き詰め、 棚通路をフラットに仕上げます。
つまずき防止や台車等の利用に最適です。
※床上げ材の材質:構造用合板/防虫合板など


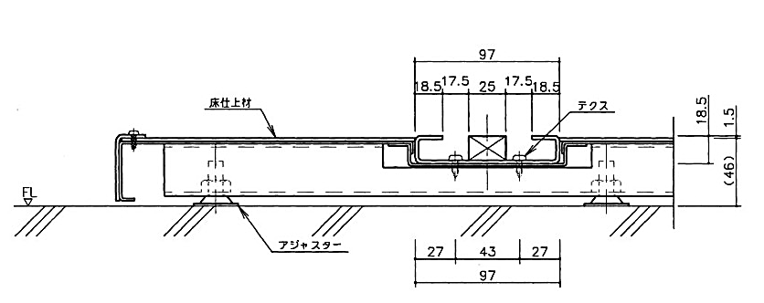
D:埋込タイプ
モルタル等でレールと同じ高さにすることで、つまずき防止・レールの固定に効果があります。
レールの施工方法については、床のコンクリート打設前に打合せが必要です。
コンクリートへの埋設になるので、サビ防止のためにステンレス製をおすすめします。


E:OAフロアタイプ
OAフロアの高さに合わせて、レールと床を同レベルにします。
高さ150mm以下の場合はハット鋼、 150mm以上の場合は鋼製束を採用します。


F:床面補強タイプ
床の耐荷重が不足した場合、 補強材を用いて床を補強しレールを設置します。
補強材 (H綱)は大梁の上で固定します。


G:レールユニットタイプ
床に置くだけの構造で、 移設が容易です。
レールユニットタイプでは、ベース部材に軽量でコンパクト化した部材を使用しています。
2~3連程度のコンパクトな計画に最適です。

